XGN 2 - 12 중전압 스위치의 성능, 안전한 작동 방법 및 기술 매개 변수를 소개합니다.
적용 범위 Scope of application
XGN 포트-12 박스 형 고정 금속 밀폐형 스위치 기어 (링 네트워크 캐비닛이라고 함) 는 AC 50Hz, 10KV 네트워크에 브레이크 부하 및 단락 회로 및 폐쇄 단락 전류로 적합합니다. 이 링 네트워크 캐비닛에는 수동 및 전기 스프링 장치가 장착되어 부하 스위치를 작동합니다. 접지 스위치 및 격리 스위치에는 수동 작동 메커니즘이 장착되어 있습니다. 이 링 네트워크 캐비닛은 강력한 완전한 성능, 스몰 사이즈, 화재 및 폭발 위험이 없으며 신뢰할 수있는 "5 가지 예방" 기능이 있습니다.
환경 조건 사용
주변 온도의 상한은 40 ° C 이며, 하한은 - 25 ° C 입니다.
고도는 1000 m 를 초과하지 않습니다;
공기 상대 습도의 일일 평균은 95% 이하이며 월 평균은 90% 이하입니다. 수증기의 일일 평균은 2.2x10-3Mpa 이하이며 월 평균은 1.8 × 10-3Mpa 이하입니다.
주변 공기는 가연성 가스 및 수증기에 의해 부식되거나 명백하게 오염되지 않습니다.
규칙적인 격렬한 진동이 없습니다.
모델과 의미
XGN□-□-□-□/□-□
정격 열 안정 전류 (KA)
정격 전류 (A)
작동 방법 (J 스프링 작동 D 전자기 작동)
- 하나의 계획 번호
정격 전압 (정격 전압)
디자인 Serial Number
- 실내
고정됨
- Box 타입
환경 조건 사용
◆ 주변 온도 상한 40 °C 하한 - 25 °C (실내):
◆ 할당 1000 m;
(수심이 1000m 를 초과하는 경우 DUT593-1996 "고전압 스위치 기어의 공유 주문을위한 기술 지침" 의 관련 조항에 따라 구현되어야한다);
◆ 상대 습도는 일일 평균 95 % 미만, 월 평균 90 % 미만:
지진의 강도는 8 도를 초과하지 않습니다;
◆ 화재, 폭발 위험, 심각한 오염, 화학 부식 및 폭력적인 교란 장소.
스위치장치의 주요 기술 매개변수
일련 번호 | 프로젝트. | 단위 | 데이터 |
1 | 정격 전압 | KV | 3、6、10 |
2 | 최대 작동 전압 | KV | 3.5、8.9、11.5 |
3 | 정격 현재 | A | May - 00 |
4 | 정격 브레이크 전류 | KA | 16.20、31.5、40 |
5 | 정격 단락 전류 (Rated Short Circuit Off Current) | KA | 40、50、80.100 |
6 | 정격 단락 열 안정화 전류 | KA | 16.20、31.5、40 |
7 | 열 안정 전류를 위한 정격 | KA | 40、50、80、100 |
8 | 정격 열 정지 시간 | ' s ' 에 해당하는 글 1 건 | 4 |
9 | 보호 수준 | IP | IP2X |
10 | 버스배 시스템 | - | 단일 버스 바 옆의 단일 버스 바 |
11 | 어떻게 작동하는지 | - | 전자기형, 스프링 에너지 저장형 |
12 | 치수 (폭), × 깊이, × 높이) | Mm | 1100 × 1200 × 2650 (1000 A 이하)). |
13 | 무게 | kg | 1000 |
구조와 오류 방지 장치
구조물
캐비닛은 금속 밀폐형 장갑 구조이며 캐비닛 골격은 앵글 강철로 용접되며 캐비닛은 회로 차단기 실, 버스 바 룸, 케이블 룸 및 릴레이 룸으로 구분됩니다. 캐비닛의 주요 구성 요소 작동은 전망대와 외관의 조명을 통해 관찰 할 수 있습니다. 스위치 기어의 기술적 성능을 향상시키기 위해 주요 구성 요소 (예: 회로 차단기, 회전 분리 스위치 등) 가 재 설계되었습니다.
캐비닛의 레이아웃에 따라 릴레이 룸에는 릴레이가 설치되어 있으며, 도어에는 신호 릴레이, 표시기, 신호 등, 전송 스위치 설치 및 작동 챔버가 장착 될 수 있으며, 후면은 버스 바 룸, 하부는 케이블 룸, 사용자는 쉽게 와이어를 할 수 있습니다. 전면은 스위치 기어의 유지 보수를 용이하게하는 회로 차단기 실입니다. 캐비닛의 내부 메커니즘은 그림 1, 그림 2 및 제품 설명서에 나와 있습니다.
오류 방지 장치
"5 가지 예방" 기능은 다음과 같습니다. 회로 차단기의 상호 연결 끊김 및 잘못된 연결을 방지하기 위해; 부하로 인해 분리 스위치의 잘못된 식별 및 잘못 닫는 것을 방지합니다. 실시간 종료 및 접지 스위치를 방지하십시오. 지면이 열리고 닫힐 때 전원 공급 장치가 켜지는 것을 방지합니다. 실시간 간격으로 잘못 들어가는 것을 방지합니다.
이 스위치 기어는 강제적 인 기계적 잠금 방법을 채택하며, 오류 방지 장치는 지지대, 디스크, 패널, 잠금 판, 핸들 및 커넥팅로드와 같은 주요 구성 요소로 구성되어 있으며 신뢰할 수있는 성능, 완벽한 기능, 간단한 구조 및 쉬운 작동" 5 가지 예방 "간단하고 효과적으로:
(1)회로 차단기의 오연결 및 오연결을 방지하기 위해 빨간색 및 녹색 판이있는 제어 스위치 (KW 스위치) 는 회로 차단기 계획에 사용됩니다.
(2) 회로 차단기가 실제로 분리 된 후에 만 작은 핸들을 "작동" 위치에서 빼내어 "연결 해제" 위치로 오른쪽으로 다이얼 할 수 있습니다. 분할 및 근접 격리 스위치; 부하 분할 및 격리 스위치 폐쇄 방지 및 격리 스위치. 래칭 및 안티 록킹의 신뢰성에는 이중 오류 방지 기능이 있습니다. 즉, 작은 핸들이 "연결 해제 및 잠금" 위치에있을 때 상단 및 하위 격리 스위치 만 닫고 나눌 수 있으며 회로 차단기를 닫을 수 없습니다.
(3) 회로 차단기와 상부 및 하부 격리 스위치가 폐쇄 상태에 있고 작은 핸들이 "작동" 위치에있을 때, 전면 및 후면 캐비닛 도어는 실수로 라이브 간격으로 들어가는 것을 방지하기 위해 열 수 없습니다.
(4) 상부 및 하부 격리 스위치가 열리면 접지 스위치를 닫을 수 없으며 작은 핸들을 "브레이크 록" 위치에서 "유지 보수" 위치로 다이얼 할 수 없으므로 라이브가 접지 와이어;
(5)접지 스위치가 열리지 않으면 상단 및 하단 격리 스위치를 닫을 수 없으므로 접지 와이어가 있는 분리 스위치가 닫히지 않습니다.
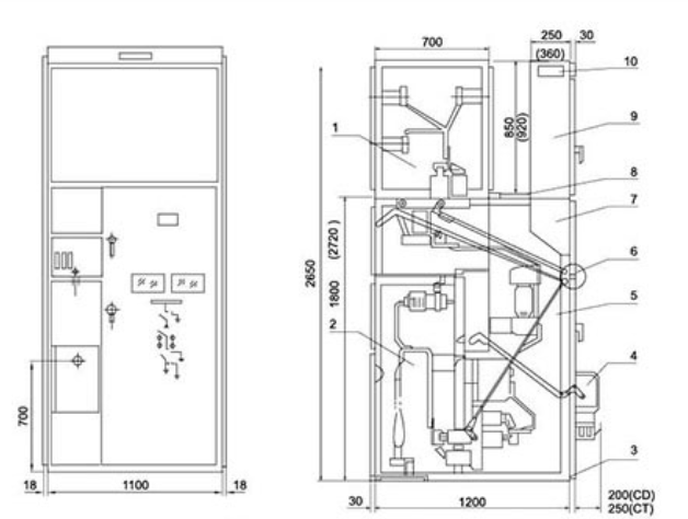
XGN □ - 12 / 07 D 윤곽 (그림 1)

1. Bu' s ' 에 해당하는 글 1 건bar Room 2케이블 방 3.버스 4 번을 접지합니다.전자기 (스프링) 메커니즘 5.새 회로 장치실
6.수동 운영과 공동 판매 메커니즘 7.운영실 8.압력 방출 채널 9룸 10 장작은 버스 터미널
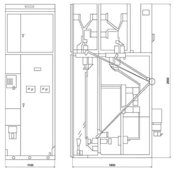
XGN - 12 (우회 케이블 출구) 윤곽 (그림 2)

치수 설치 도면

