HXGN - 12 중전압 스위치기의 성능, 안전한 작동 방법 및 기술 매개 변수를 소개합니다.
1.사용의 범위

HXGN□-12 (F.R) 박스 형 고정 AC 금속 밀폐형 스위치 기어 ("링 네트워크 캐비닛" 이라고 함) 는 도시 전력망의 개조 및 건설을 위해 설계된 새로운 유형의 스위치 기어입니다. 또한 전원 공급 장치 시스템에서 하중 전류, 단락 전류 및 닫는 접시 전류로도 사용되며 AC 3-10KV, 50Hz 배전 시스템에 적합합니다. 그것은 널리 도시 전력망 건설 및 개조 프로젝트, 산업 및 광업 기업, 고층 건물 및 공공 시설 등 링 네트워크 전원 공급 장치 및 터미널 장비로 전력 분배, 제어 및 전기 장비의 보호, 사전 설치된 변전소에 설치할 수도 있습니다. 이 링 네트워크 캐비닛에는 수동 또는 전기적으로 작동 할 수있는 진공 부하 스위치와 스프링 작동 메커니즘이 장착되어 있습니다. 접지 스위치와 격리 스위치에는 수동 작동 메커니즘이 장착되어 있으며이 링 네트워크 캐비닛의 전체 세트는 강력하고 작습니다. 연소 및 폭발의 위험이 없으며 신뢰할 수있는 "5 가지 예방" 기능이 있습니다. 이 링 네트워크 캐비닛은 GB3960 "3 ~ 35KV AC 금속 스위치" 및 IEC60420 "고전압 AC 부하 스위치-퓨즈 조합 전기 기기" 표준의 관련 규정을 준수합니다.
2.모델과 그 의미
HXGN□- 12 (FR)
H : 링 네트워크
X: 상자 유형
G: 고정
N: 실내
□: 설계 일련 번호
12: 정격 전압
(F.R)로드 스위치 - 퓨즈 조합
3. 정상적인 사용 조건
1.주변 공기 온도 : - 15 0 40 ° C;
2.고도: 1000 m 이하;
3. 습도 조건: 일일 평균은 95% 이하, 일일 평균 수증기압은 2.2kPa 이하, 월 평균은 90% 이하, 월 평균 수증기압은 L 8kPa 이하;
4.지진 강도 : 8 도 이상;
5.부식성 또는 가연성 가스와 같은 명백한 오염 물질은 없습니다.
참고: 위의 정상적인 사용 조건이 초과되는 경우 사용자는 회사와 협상 할 수 있습니다.
4.주요 기술 매개변수
일련 번호 | 이름 | 단위 | 데이터 | |
1 | 정격 전압 | KV | 12 | |
2 | 정격 현재 | 로드 스위치 기어 | A | 630 |
결합된 스위치장치 | 125 | |||
3 | 정격 단락 차단 전류 | KA | 31.5 | |
4 | 정격 활성 부하 차단 전류 | A | 630 | |
5 | 단기 견딜 전류 등급 | KA | 20 | |
6 | 정격 피크 견딜 전류 | KA | 50 | |
7 | 정격 전원 주파수는 위상 간, 접지 전압을 견딜 수 있도록 정격합니다./끊기 | KV | 42/48 | |
8 | 번개 충격은 전압 위상, 접지에 저항/끊기 | KV | 75/85 | |
9 | 기계적 수명 Mechanical life | 시간 | 10000 | |
10 | 정격 핸드오버 전류 (조합된 기기) | A | 3150 | |
11 | 어떻게 작동하는지 | 수동 또는 전기 | ||
12 | 보호 수준 | IP 3 X | ||
5.구조적 특성 (as그림 2 및 그림 3)
1.구조적 성능 특성
1.1.1 링 네트워크 캐비닛은 8MF 프로파일을 채택하고 전체 프레임에는 모듈러스 구멍 B = 2 (tan.
L1.2 링 네트워크 캐비닛에는 격리 스위치, 진공 부하 스위치 및 접지 스위치가있는 FZN 21 - 12 D. 부하 스위치 또는 FZRN 21 - 12 D. 퓨즈 콤비네이션 전기 기기가 장착되어 있으며 분리 스위치 및 접지 스위치가 분명합니다.
1,3 격리 스위치, 진공 부하 스위치, 접지 스위치 및 캐비닛 도어에는 완벽하고 신뢰할 수있는 파기 및 연동 장치가있어 오작동을 효과적으로 방지하고 안전한 유지 보수를 보장합니다.
1. 1. 4 수동 및 전기적으로 작동할 수 있습니다.
1. L 5 측정 캐비닛의 캐비닛 문 및 계기 문에는 밀봉 핀이 장착되어 있습니다.
1.1.6 퓨즈 조합 전기 캐비닛과 용융 튜브 발사 핀. 단락 회로의 경우 발사 핀이 트립 메커니즘에 부딪쳐 빠른 개폐 및 파손을 달성하여 전기 장비를 효과적으로 보호 할 수 있습니다.
1. L 7 링 메쉬 캐비닛은 전면 작동, 신뢰할 수있는 벽 장착을 채택합니다.
2. ' 5 가지 예방 ' 잠금 기능
2. 2.1 송전 작업: 캐비닛 도어가 닫히고 잠겨 있고 접지 스위치가 "열린" 위치로 작동 할 때만 부하 스위치를 작동시켜 위치를 닫을 수 있습니다.
2.2.2 정전 작동: 부하 스위치가 격리 위치에있을 때 접지 스위치를 닫을 수 있으며 접지 스위치가 닫힌 위치에있을 때 절연 파티션을 삽입하여 캐비닛 도어를 엽니 다.
2.1. 3 진공 차단기는 격리 나이프와 안정적으로 연동되며 격리 나이프와 접지 나이프는 서로 연결되어 캐비닛 도어와 연동되며 절연 파티션도 캐비닛 도어와 연동됩니다.
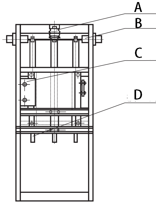
![]() | 그림 2 A: 절연체 B: 벽을 통해 케이스 C: 운영 메커니즘 D.: 접지 스위치 |
![]() | 그림 3 A: 퓨즈 (절연 칼 게이트) B : 총알 제어 메커니즘 C: 로드 스위치 D.: 전류 변압기 |
6.링 네트워크 전원 공급의 원리
링 네트워크 전원 공급 장치 <3 개의 기본 장치로 구성됩니다 (그림 참조) 입구 및 출구 라인 캐비닛은 고장이 발생할 때 시간에 격리 할 수있는 링 네트워크 장치로 사용되며 다른 장치는 사용자의 변압기 분기. 사용자 루프 네트워크 캐비닛은 변압기를 보호하고 격리하는 역할을하므로 유지 보수 및 점검에 편리합니다. 링 네트워크 캐비닛은 임의로 확장 될 수 있으며 사용자 요구 사항에 따라 기본 유닛으로부터 다양한 조합 방식으로 구성 될 수 있습니다.
![]() | ||
| 케이블 입구 및 출구 라인 캐비닛 사용자 변압기 분기 캐비닛 케이블 입구 및 출구 라인 캐비닛 |
7.주요 회로 구조도
계획 번호 | 01 | 02 | 03 | 04 | 05 | 06 |
주요 회로 구조도 | ![]() | |||||
사용 | 라인 내부 및 외부 케이블 | 라인 내부 및 외부 케이블 | 라인 내부 및 외부 케이블 | 라인 내부 및 외부 케이블 | 라인 내부 및 외부 케이블 | 라인 내부 및 외부 케이블 |
격리 (isolation)/로드 / 결합 기기 | GN□- 12 D. | GN□- 12 D. | GN□- 12 D. | FZN 21 - 12 D. | FZN 21 - 12 D. | FZN 21 - 12 D. |
퓨즈 | RN 3 | RN 3 | ||||
전류 변압기 | LZZBJ 9 | LZZBJ 9 | ||||
차단기 | HY 5 W | |||||
계획 번호 | 07 | 08 | 09 | 10 | 11 | 12 |
주요 회로 구조도 | ![]() | |||||
사용 | 라인 내부 및 외부 케이블 | 라인 내부 및 외부 케이블 | 라인 내부 및 외부 케이블 | 라인 내부 및 외부 케이블 | 라인 내부 및 외부 케이블 | 라인 내부 및 외부 케이블 |
격리 (isolation)/로드 / 결합 기기 | FZN 21 - 12 D. | FZN 21 - 12 D. | FZN 21 - 12 D. | FZN 21 - 12 D. | FZN 21 - 12 D. | GN□- 12 D. |
퓨즈 | RN 2 | RN 2 | RN 2 | |||
전류 변압기 | LZZBJ 9 | LZZBJ 9 | LZZBJ 9 | LZZBJ 9 | ||
전압 변압기 | JD.Z | JD.Z | JD.Z | |||
차단기 | HY 5 W | HY 5 W | HY 5 W | |||
계획 번호 | 13 | 14 | 15 | 16 | 17 | 18 |
주요 회로 구조도 | ![]() | |||||
사용 | 미터링 케이블 인바운드 및 아웃바운드 라인 | 라인 내부 및 외부 케이블 | 라인 내부 및 외부 케이블 | 라인 내부 및 외부 케이블 | 미터링 케이블 인바운드 및 아웃바운드 라인 | 오버헤드 들어오는 케이블 출구 |
격리 (isolation)/로드 / 결합 기기 | FZRN 21 - 12 | FZRN 21 - 12 D. | FZRN 21 - 12 D. | FZRN 21 - 12 D. | GN□- 12 D. | |
퓨즈 | RN 2 | S□LAJ | S□LAJ | S□LAJ | RN 2 | RN 3 |
전류 변압기 | LZZBJ 9 | LZZBJ 9 | LZZBJ 9 | LZZBJ 9 | ||
전압 변압기 | JD.Z | JD.Z | ||||
계획 번호 | 19 | 20 | 21 | 22 | 23 | 24 |
주요 회로 구조도 | ![]() | |||||
사용 | 오버헤드 들어오는 케이블 출구 | 오버헤드 들어오는 케이블 출구 | 오버헤드 들어오는 케이블 출구 | 오버헤드 들어오는 케이블 출구 | 오버헤드 들어오는 케이블 출구 | 오버헤드 들어오는 케이블 출구 |
격리 (isolation)/로드 / 결합 기기 | FZRN 21 - 12D. | FZRN 21 - 12 D. | FZRN 21 - 12 D. | FZRN 21 - 12 D. | FZRN 21 - 12 D. | FZRN 21 - 12 D. |
퓨즈 | S□LAJ | S□LAJ | S□LAJ | S□LAJ | ||
전류 변압기 | LZZBJ 9 | LZZBJ 9 | LZZBJ 9 | LZZBJ 9 | ||
전압 변압기 | ||||||
계획 번호 | 25 | 26 | 27 | 28 | 29 | 30 |
주요 회로 구조도 | ![]() | |||||
사용 | 연락처 | 연락처 | 측정 및 연락 | 측정 및 연락 | 오버헤드 라인 접점 | 오버헤드 라인 접점 |
격리 (isolation)/로드 / 결합 기기 | FZRN 21 - 12 | FZRN 21 - 12 D. | FZRN 21 - 12 D. | FZRN 21 - 12 | ||
퓨즈 | S□LAJ | RN 2 | RN 2 | S□LAJ | ||
전류 변압기 | LZZBJ 9 | LZZBJ 9 | ||||
전압 변압기 | JD.Z | JD.Z | ||||
8.쉐이프 및 설치 크기
1.링 네트워크 캐비닛의 전체 크기
![]() | ![]() | 캐비닛 폭 방향 |
| 설명: 높이 선택 가능 | 캐비닛 깊이 방향 |
2.링 네트워크 캐비닛의 설치 크기
![]() |
| 참고: 채널 강철은 안정적으로 접지되어야합니다. |