KYN 61 - 40. 5 중전압 스위치의 성능, 안전한 작동 방법 및 기술 매개 변수를 소개합니다.
모델과 의미
K Y N 61 - 40. 5 / □ - □
정격 차단 단락 전류 (KA)
정격 전류 (A)
정격 전압 (KV)
디자인 Serial Number
실내 (Interior)
- - - - - - - - - - - - - - - - - 제거 유형
금속 갑옷 (metal armor)
환경 조건 사용
주변 온도의 상한은 40 ° C 이며 24 시간 내의 평균 측정 값은 35 ° C 를 초과하지 않습니다.
하한 - 15 °C:
고도: 해수면 1000 미터 이상;
상대 습도 : 일일 평균 95 % 미만, 월 평균 90 % 미만;
지진 강도 : 8 도 이상;
수증기 압력 : 일일 평균 2. 2 kPa 를 초과하지 않으며 월 평균은 90 % 를 초과하지 않습니다.
기술 매개 변수
진공 스위치기의 주요 기술 매개 변수
일련 번호 | 프로젝트. | 치수 (Dimensions) | 매개변수 |
1 | 정격 전압 | KV | 40.5 |
2 | 연창 | A | 12501600 2000 |
3 | 정격 주파수 | Hz | 50 |
4 | 단기 견딜 전류 등급 | KA | 20 25 31.5 |
5 | 정격 피크 견딜 전류 | KA | 50 63 80 |
6 | 정격 전원 주파수 견딜 전압 | KV | 95 / 1 분 |
7 | 정격 번개 충격 저항 전압 | KV | 185 |
8 | 정격 단락 시간 | S | 4 |
9 | 보호 수준 | IP 3 X |
진공 회로 차단기의 주요 기술 매개 변수
일련 번호 | 프로젝트. | 직조 위치 | 매개변수 |
1 | 정격 전압 | KV | 40.5 |
2 | 정격 주파수 | Hz | 50 |
3 | 정격 전원 주파수 견딜 전압 | KV | 95 / lmin |
4 | 정격 번개 충격 저항 전압 | KV | 185 |
5 | 정격 현재 | A | 12501600 2000 |
6 | 단기 견딜 전류 등급 | KA | 20 25 31.5 |
7 | 정격 단락 차단 전류 | KA | 20 25 31.5 |
8 | 정격 피크 견딜 전류 | KA | 50 63 80 |
9 | 정격 단락 시간 | ms | 4 |
10 | 영업시간 | ms | 30 S 1 W 60 |
11 | 허허 시간 | ms | 50 & t W] 00 |
12 | 88 고정 단락에서 전류가 중단되는 횟수 | 시간 | 20 |
13 | 기계적 수명 Mechanical life | 시간 | 10000 |
스프링 작동 기계의 주요 기술 매개 변수
이름 | 단위 | 숫자 값 | |
정격 작동 전압 | 분할 코일 | V | DC 220 / 110 AC 220 / 110 |
닫기 코일 | |||
정격 작동 전류 | 분할 코일 | A | O. 96 (22 OV) 1. O 5 I 11 OV) |
닫기 코일 | |||
에너지 저장 모터 전력 | W | 230 | |
에너지 저장 모터 등급 전압 | V | DC 220 / 110 AC 220 / 110 | |
에너지 저장 시간 | S | w 12 |
스위치장치의 구조특성
스위치 장갑 금속 둘러싸인 스위치 장갑 GB 3906 - 1991 및 IEC 298 기준에 따라 설계되었습니다.전체는 캐비닛과 추출 가능한 부분 (수차) 의 두 부분으로 구성됩니다.캐비닛 구조는 조립되어 볼트로 조립되어 있다.스위치기의 내부는 회로 차단기 룸, 주 버스 바 룸, 케이블 룸 및 금속 칸막이가 있는 릴레이 기기 룸으로 나뉘어져 있습니다.엔클로저의 보호 수준은 IP 3 X 에 도달하고, 각 구획 사이의 보호 수준은 IP 2 X 이며, 모든 금속 구조 부품은 안정적으로 접지되며, 주 회로 시스템의 각 구획은 독립적 인 배기 압력 방출 채널을 가지고 있습니다.
1.엔클로저 및 파티션
스위치 장치의 쉘 및 파티션은 CNC 가공 및 구부러진 후 냉연 강판과 함께 볼트로 고정됩니다.따라서 조립된 스위치장치는 구조 치수의 균일성을 보장할 수 있습니다.스위치 장치는 회로 차단기 룸, 주 버스 바 룸, 케이블 룸 및 릴레이 기기 룸으로 나뉘며 각 부분은 접지 금속 파티션으로 분리됩니다.
2.핸드 카트
카트는 용도에 따라 회로 차단기 카트, 변압기 카트, 계량 카트, 격리 카트 등으로 구분됩니다.
핸드 카트는 테스트 / 격리 위치와 캐비닛의 작업 위치가 있으며, 각 위치에는 위의 두 위치에있을 때 핸드 카트가 우연히 움직일 수 없도록 접합 실버 장치가 장착되어 있습니다.
3.회로 차단기 칸
핸드 카트가 이동할 수 있도록 회로 차단기 칸 안에는 특정 트랙이 설치되어 있습니다.회로 차단기가 테스트 위치의 작업 위치 사이를 이동할 때, 격리 밸브가 자동으로 열리거나 닫히므로 직원이 작동하지 않도록합니다.
충전된 시체를 만지다.캐비닛 문을 닫고 캐비닛에 있는 핸드 카트를 볼 수 있으며, 핸드 카트에 있는 기능 표지판을 통해 핸드 카트를 볼 수 있습니다.
4.버스바 챔버
주버스는 분기 버스 바와 정적 접촉 박스를 통해 한 스위치에서 다른 스위치로 연결되며, 인접한 캐비닛의 측면 패널을 교차할 때 버스 바 슬리브로 고정됩니다.모든 버스바는 복합 절연으로 절연됩니다.
5.케이블 룸
PT, 접지 스위치, 서지 차단기 및 여러 케이블을 케이블 룸에 설치할 수 있습니다.
6.릴레이 룸
릴레이 챔버 플레이트 및 패널은 제어, 보호 요소, 미터링, 디스플레이 계측, 라이브 모니터링 표시등과 같은 2 차 구성 요소와 함께 설치할 수 있습니다.
7.인터로크 장치
스위치장치는 작업자와 장비의 안전을 보장하기 위해 신뢰할 수 있는 상호 잠금 장치가 있습니다.:
![]() | ![]() | ![]() |
| 상호 연결 설치를 촉진하려면 | KYN 61 - 40. 5 (Z) 장갑형 핸드카트 캐비닛 | 접지 스위치 |
접지 스위치가 열린 위치에있을 때, 핸드 카트는 테스트 / 격리 위치에서 작업 위치로 이동할 수 있습니다: 그리고 후면 도어를 열 수 없습니다, 실수로 라이브 간격으로 들어가는 것을 방지합니다.
캐비닛에서 핸드 카트를 완전히 끌어 당기거나 캐비닛의 테스트 / 격리 위치에서 핸드 카트를 접지하여 잠금 및 잠금 해제기를 열면 접지 스위치를 닫을 수 있습니다; 핸드 카트가 작동 위치에있을 때 접지 스위치를 닫을 수 없습니다.접지 스위치의 라이브 오연결을 방지하고 접지 스위치가 닫힌 위치에있을 때 다중 손 카트가 작동 위치로 이동하지 않습니다.
회로 차단기 카트는 테스트 / 격리 위치 또는 작업 위치에있는 경우에만 회로 차단기를 작동시킬 수 있습니다: 회로 차단기 이름이 지정된 후, 카트는 이동할 수 없으므로 라이브 부하가 실수로 회로 차단기를 밀고 당기는 것을 방지합니다.각 캐비닛 사이에 전기 인터락이 설치될 수 있습니다.
접지 장치
케이블 룸에는 인접한 캐비닛을 통과하고 캐비닛과 좋은 접촉을 할 수있는 별도의 6 x 50 mm 2 접지 버스 바가 있습니다.
주요 배선 계획
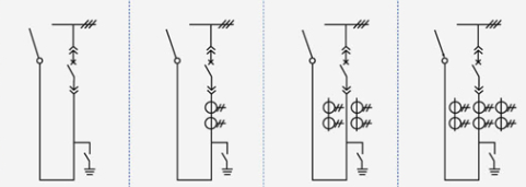
스위치장치의 1 차 배선 계획에는 일반적으로 사용되는 27 가지 전형적인 계획이 있으며, 이는 케이블 입구 및 출구 라인, 오버헤드 입구 및 출구 라인, 접촉 및 측정, 보호 등에 대한 사용자의 요구를 충족시킬 수 있습니다.
계획 번호 | 01 | 02 | 03 | 04 | |
주 배선도 | ![]() | ||||
주요 전기 장비 | 정격 현재 | 125,016,002,000 | |||
새로운 회로 드라이버 ZN 85 - 40. 5 | 1 | 1 | 1 | 1 | |
전류변압기 LDBJ 8 (9) - 35 | 2 | ||||
접지 스위치 IN 22 - 40. 5 / 31. 5 | 1 | 1 | 1 | 1 | |
사용 | 오버헤드 아웃 | 오버헤드 아웃 | 오버헤드 아웃 | 오버헤드 아웃 | |
계획 번호 | 05 | 06 | 07 | 08 | |
주 배선도 | ![]() | ||||
주요 전기 장비 | 정격 현재 | 125,016,002,000 | |||
새로운 회로 드라이버 ZN 85 - 40. 5 | 1 | 1 | 1 | 1 | |
전류변압기 LDBJ 8 (9) - 35 | 2 | 3 | |||
접지 스위치 IN 22 - 40. 5 / 31. 5 | 1 | 1 | 1 | 1 | |
사용 | 케이블 콘센트 | 케이블 콘센트 | 케이블 콘센트 | 케이블 콘센트 | |
계획 번호 | 09 | 10 | 11 | 12 | |
주 배선도 | ![]() | ||||
주요 전기 장비 | 정격 현재 | 125,016,002,000 | |||
새로운 회로 드라이버 ZN 85 - 40. 5 | 1 | 1 | 1 | 1 | |
전류변압기 LDBJ 8 (9) - 35 | 1 | 2 | 3 | ||
사용 | 왼쪽 (오른쪽) 접점 | 왼쪽 (오른쪽) 접점 | 왼쪽 (오른쪽) 접점 | 왼쪽 (오른쪽) 접점 | |
계획 번호 | 13 | 14 | 15 | 16 | |
주 배선도 | ![]() | ||||
주요 전기 장비 | 정격 현재 | 125,016,002,000 | |||
새로운 회로 드라이버 ZN 85 - 40. 5 | |||||
전류변압기 LDBJ 8 (9) - 35 | 1 | 2 | 3 | ||
사용 | 연락처 | 연락처 | 연락처 | 연락처 | |
계획 번호 | 17 | 18 | 19 | 20 | |
주 배선도 | ![]() | ||||
주요 전기 장비 | 정격 현재 | 125,016,002,000 | |||
새로운 회로 드라이버 ZN 85 - 40. 5 | 1 | 1 | 1 | 1 | |
전류변압기 LDBJ 8 (9) - 35 | 1 | 2 | 3 | ||
사용 | 케이블 연결 | 케이블 연결 | 케이블 연결 | 케이블 연결 | |
계획 번호 | 21 | 22 | 23 | 24 | |
주 배선도 | ![]() | ||||
주요 전기 장비 | 정격 현재 | 125,016,002,000 | |||
새로운 회로 드라이버 ZN 85 - 40. 5 | 1 | 1 | 1 | 1 | |
전류변압기 LDBJ 8 (9) - 35 | 1 | 2 | 3 | ||
사용 | 오버헤드 | 오버헤드 | 오버헤드 | 오버헤드 | |
계획 번호 | 25 | 26 | 27 | 28 | |
주 배선도 | ![]() | ||||
주요 전기 장비 | 정격 현재 | 125,016,002,000 | |||
변압기 LDX 9 - 35 | |||||
퓨즈 XPNP - 35 | 2 | 3 | 2 | ||
서지 차단기 YH 5 WS - 51 / 134 Q | 3 | ||||
| 변압기 SCB 9 - 50 - 35 / 0. 4 | 1 | ||||
사용 | 전압 변압기 | 전압 변압기 | 스테이션 사용이 변경됨 | ||
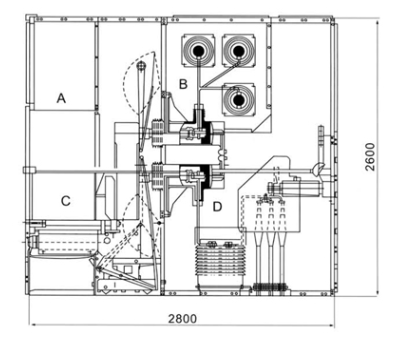
스위치장치 구조의 치수 및 구조도
![]() | ![]() |
| 치수 (WxDxH): 1400 x 2800 x 2600 | 스위치장치 구조도 A 릴레이 계기실 B 버스실 C 회로 차단기실 D 케이블 |
스위치 캐비닛 설치
1.전기실 높이: ≥ 4500 mm:
2.캐비닛 뒤쪽에서 벽까지의 거리 : ≥ 1500 mm;
3.기초 프레임의 평평함: ≤ 1 mm / m?;
4.바닥 위의 재단 내장 채널 강철의 부분은 3 mm 를 초과하지 않아야합니다;
5.그것은 볼트나 용접으로 기초에 고정할 수 있다:
6.스위치기의 무게는 약 1800 kg 입니다.:
7.스위치 작동 복도의 폭 (단일 줄): ≥ 3000 mm, 이중 줄 (대면) ≥ 4000 mm.
제품 일관성
2 차 라인의 주요 계획 번호, 단일 버스 시스템 다이어그램, 배치 다이어그램 및 배치 다이어그램;
2 차 회로 전기 구조도 및 터미널 배열도:
스위치기의 전기 부품의 모델, 사양 및 수량;
메인 및 분기 버스바의 사양 및 재료:
예비 부품 및 예비 부품의 이름 및 수량:
특별한 요구 사항은 제조업체와 동의합니다.
제품 기술의 지속적인 개선으로 인해, 모든 데이터는 공장의 최신 기술 부서에 의해 확인되어야하며, 사전 통지없이 변경될 수 있습니다.
주문 지침
사용자는 주문할 때 다음 기술 정보를 제공해야 합니다.:
주요 배선 계획도, 목적 및 단일 와이어 시스템도: 정격 전압: 정격 전류: 정격 단락 차단 전류: 배전실 배치도 및 스위치 배열 및 구성도 등.
입구 및 출구 케이블의 사양을 표시합니다.
스위치장치의 제어, 측정 및 보호 기능에 대한 요구 사항 및 잠금 및 자동 장치에 대한 기타 요구 사항.
스위치장치의 주요 전기 부품의 모델, 사양 및 수량.마치 사이를 뚫는 것 같군요!또는 들어오는 캐비닛은 버스 바 브리지로 연결되어야 하며, 버스 바 브리지의 정격 용량 및 지면 높이로부터의 버스 바 브리지의 스팬과 같은 특정 요구 사항이 제공되어야 합니다.
스위치 장비를 특수 환경에서 사용할 경우 주문 시 자세히 설명해야 합니다.
다른 특별한 요구 사항.
스위치장치 설치의 도식도
